La rénovation de maison est un projet qui peut être ambitieux et qui peut vous permettre d'augmenter la valeur de la maison une fois les travaux terminés. C'est pourquoi, La Maison des Travaux Brest vous propose les conseils suivants pour votre rénover la maison :
Un état des lieux de la maison à rénover
Tout d'abord, un état des lieux de l'ensemble de la maison vous permettra d'évaluer les besoins pour cette rénovation de maison. Est ce nécessaire de rénover la salle de bain ? rénover la cuisine ? changer les fenêtres, les sols, le système de chauffage ? La toiture est elle en bonne état ? La maison est elle bien isolée pour ne pas trop consommer d'énergie ?
Le Diagnostic de Performance Energétique DPE vous aide à faire le point sur l'état énergétique de la maison.
Estimer le coût des travaux à réaliser pour votre rénovation maison
Ensuite, définir vos priorités vous permettra de distinguer parmis les différents travaux à réaliser, ce qui est urgent et ce qui peut attendre éventuellement.
Une estimation du coût des travaux vous aidera dans l'arbitrage des travaux à réaliser pour rénover la maison. Votre courtier en travaux de La Maison des Travaux Brest peut vous accompagner dans cette démarche. Il connaît les prix pratiqués par les entreprises dans les différents corps de métier. Il vous fera gagner un temps précieux pour rénover votre maison.
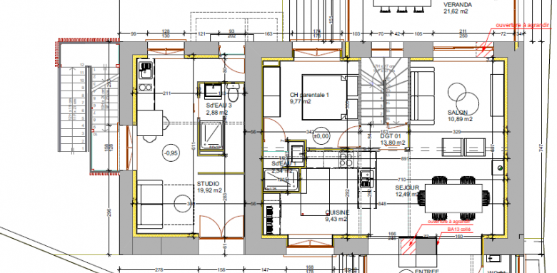
Besoin d'un architecte pour rénover la maison ?
Le courtier pourra également vous présenter un architecte pour concevoir un nouvel agencement de la maison. Si vous souhaitez changer la fonction des pièces de la maison, ou agrandir la maison par une extension, l'architecte présenté par votre courtier en travaux vous présentera des visuels 3D du rendu après travaux, ainsi que des plans de votre projet. Il s'occupera également du permis de construire ou de la déclaration préalable de travaux si nécessaire pour votre rénovation de maison.
Choisir les matériaux adaptés à votre projet de rénovation de maison
Le choix des matériaux est important pour bien rénover la maison. Nous vous conseillons d'utiliser des matériaux de qualité qui durent dans le temps, choisis dans les négoces professionnels. Choisissez un style qui s'harmonise avec l'ensemble de la maison et qui soit en lien avec vos goûts et votre personnalité. La encore, votre courtier en travaux vous conseillera des fournisseurs professionnels chez qui vous pourrez choisir les matériaux adaptés à votre projet rénovation de maison.
Pendant les travaux
Pendant les travaux, n'hésitez pas à vous rendre sur place et discuter avec les artisans. Ils sauront répondre à vos interrogations et vous rassurer. Si vous souhaitez faire des modifications par rapport à ce qui était prévu initialement, demandez un devis à votre courtier en travaux. Cela évitera des malentendus éventuels.
Les travaux de rénovation de maison vont permettre de personnaliser votre intérieur et améliorer votre qualité de vie dans la maison. Faire appel à votre courtier de La Maison des Travaux Brest vous permettra de réaliser vos travaux de rénovation maison sereinnement.
